NYBYGGDA VILLOR I ROLDAN
Lyxiga 2 nybyggda villor på en våning i Roldan, Murcia.
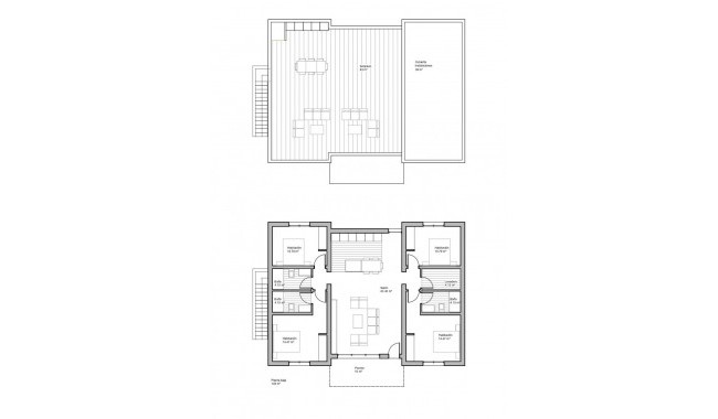
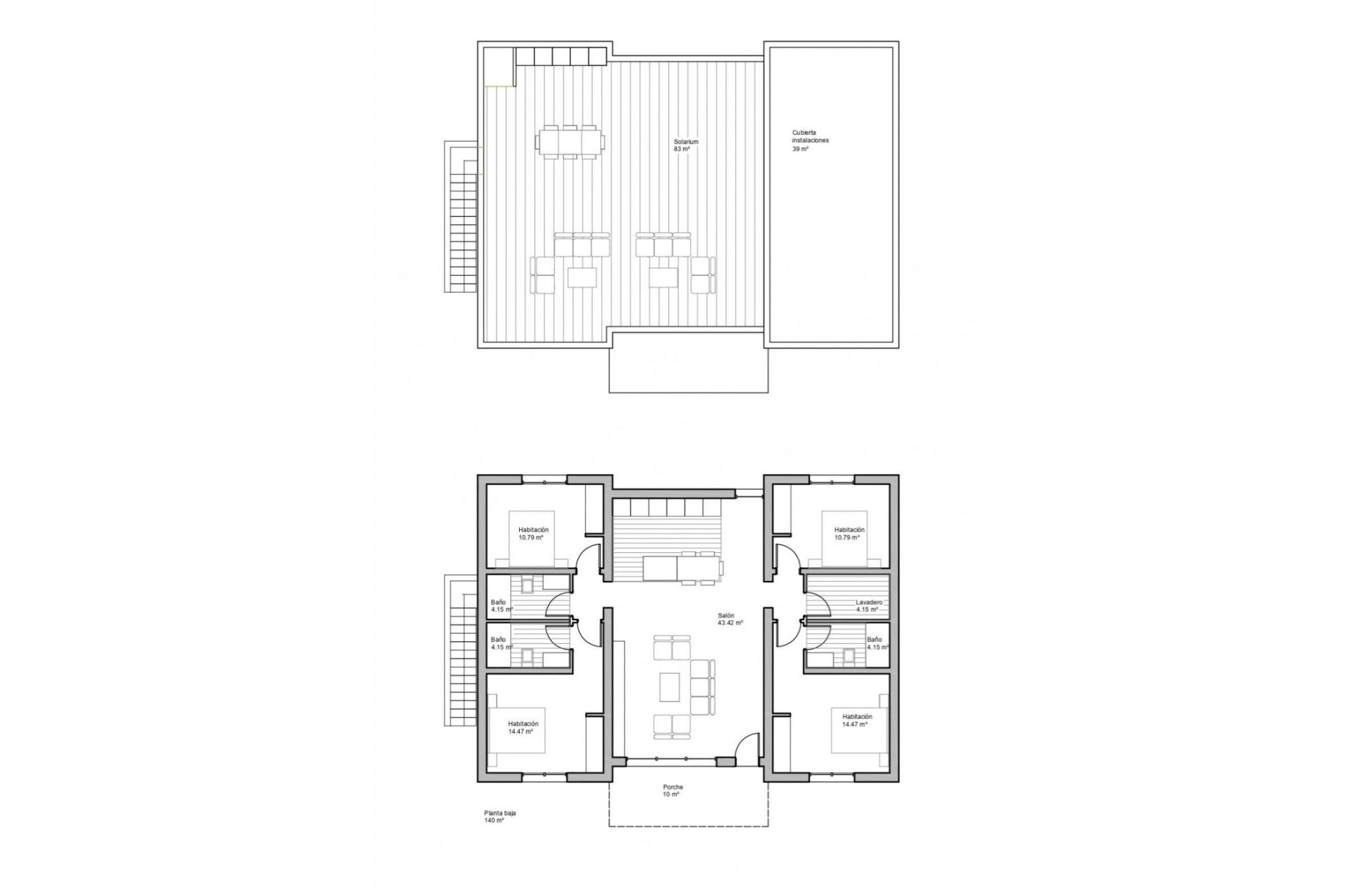
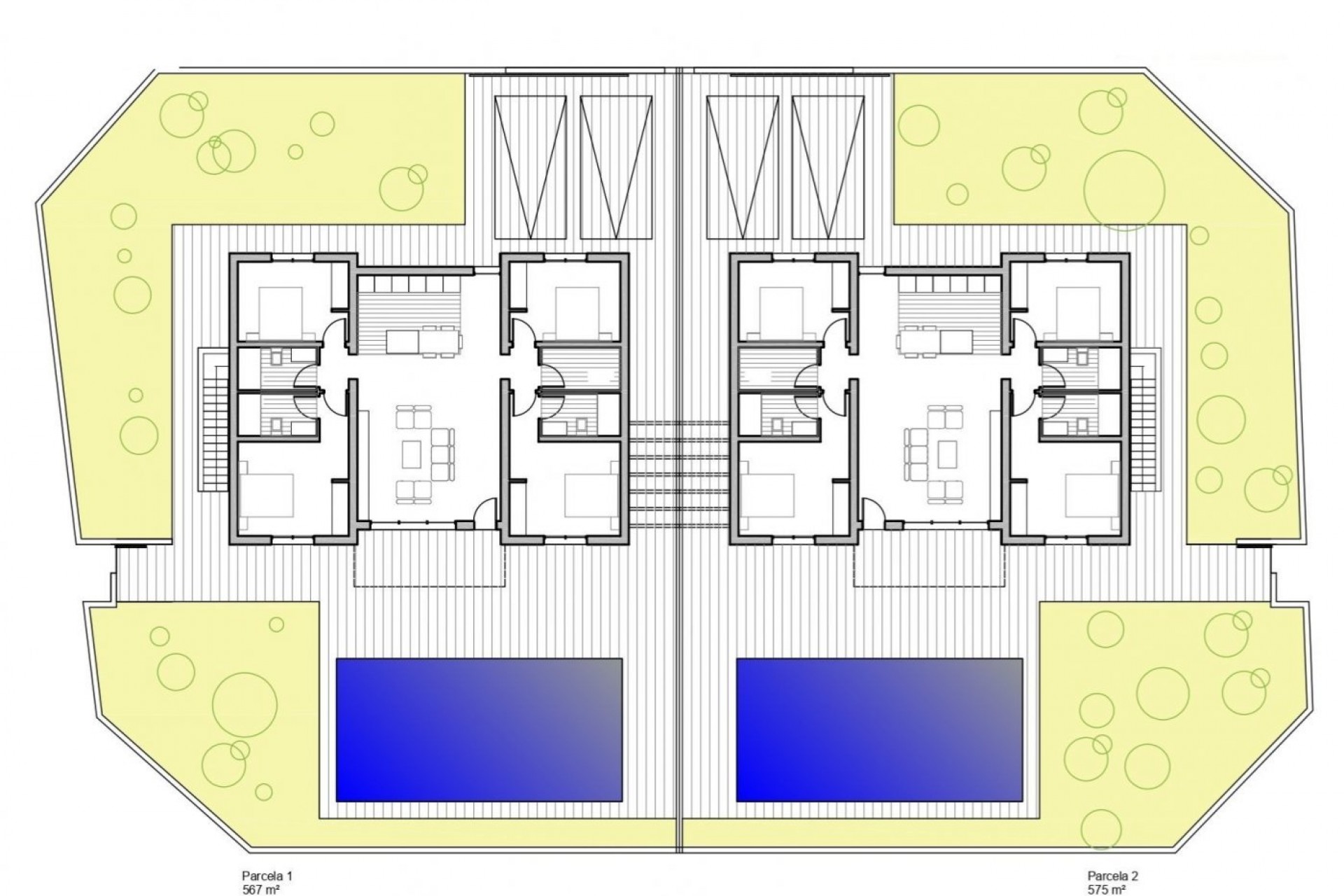
Villor byggda på tomter på nästan 600 M2 vardera, med privat pool på 30 M2, trädgårdsområde och stort solarium på taket.
Varje fastighet har 4 sovrum och 3 utrustade badrum och har utformats med en modern stil och ett öppet planerat koncept, bestående av ett fullt utrustat kök och vardagsrum/matsal.
Projektet ligger i Roldán (Murcia), i en gated och säkerhetskontrollerad resort, som ingår i en delplan på 300 000 M2, omgiven av all service, idrottsanläggningar och nära flera golfbanor.
Fastigheten kommer att uppfylla de högsta standarderna och kommer att vara utrustad med:
Privat pool på 30 M2 med soldusch.
Förinstallation för uppvärmd pump.
Kök helt möblerat och utrustat med upphöjd ugn, inbyggd mikrovågsugn, integrerad diskmaskin, kylskåp och fläkt.
Öområde i köket.
LED-belysning: inne i fastigheten (matsal, kök, korridorer och badrum) samt i utomhusområden.
Fodrade garderober med lådor.
Fullt utrustade badrum med hängande kommod och hängande toalett, spegel med belysning, dusch med "regneffekt" och duschväggar.
Förinstallation för luftkonditionering med kanal.
Sommarkök med skjutdörrar i solarium. Förinstallation för tvättmaskin och kylskåpsuttag.
Solpanel.
Parkering på tomten.
Roldan i sig är en traditionell stad med alla lokala bekvämligheter som du behöver, inklusive stormarknader, restauranger, barer, hälsoklinik, apotek, polisstation, bensinstation, mekaniker, tandläkare, läkare med mera.
De närliggande golfanläggningarna La Torre och Terrazas är lättillgängliga, Corveras flygplats ligger 15 minuter bort och stränderna i Mar Menor ligger bara 20 minuters bilresa bort.