New Build » Villa » Jávea Xàbia » La
Close
 
(+47) 406 26 190 (+34) 722 53 23 03 info@casaverano.no

Jávea Xàbia · La Cala Villa · New Build | Ref.: RS-5845

€ 1.450.000

Jávea Xàbia · La Cala Villa · New Build | Ref.: RS-5845

Modern New Build Villa Near the Sea in Javea

Description

Features

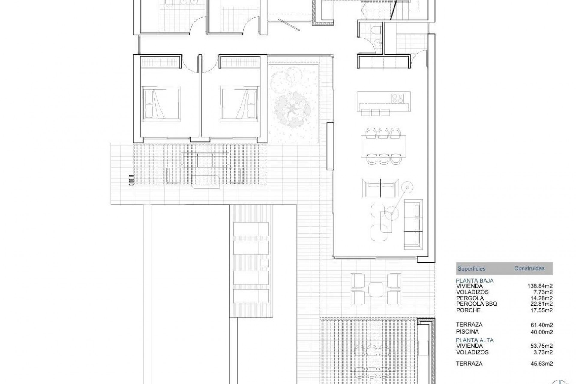
Bedrooms: 3
Bathrooms: 2
Built: 210m2
Plot: 1.000m2
Pool: Yes
Distance to beach: 800 Mts.
Near Commercial Center
Location: Coastal
Beach: 800 Meters
Parking - Space
Useable Build Space: 160 Msq.
Terrace: 105 Msq.
Toilet: 1
Garden
Private Pool
Solarium: Yes
Gated
Number of Parking Spaces: 1
Near Schools
Air Conditioning: Pre-Installed
Double Bedrooms: 3

Location

Ask for information



Responsable del tratamiento: Joakim Sigurd Lystad, Finalidad del tratamiento: Gestión y control de los servicios ofrecidos a través de la página Web de Servicios inmobiliarios, Envío de información a traves de newsletter y otros, Legitimación: Por consentimiento, Destinatarios: No se cederan los datos, salvo para elaborar contabilidad, Derechos de las personas interesadas: Acceder, rectificar y suprimir los datos, solicitar la portabilidad de los mismos, oponerse altratamiento y solicitar la limitación de éste, Procedencia de los datos: El Propio interesado, Información Adicional: Puede consultarse la información adicional y detallada sobre protección de datos Aquí.
WhatsApp