Resale » Plot » Torrevieja » Centro
Close
 
(+47) 406 26 190 (+34) 722 53 23 03 info@casaverano.no

Torrevieja · Centro Plot · Resale | Ref.: IH-5736

€ 550.000

Torrevieja · Centro Plot · Resale | Ref.: IH-5736

Building plot in the centre of Torrevieja

Description

Features

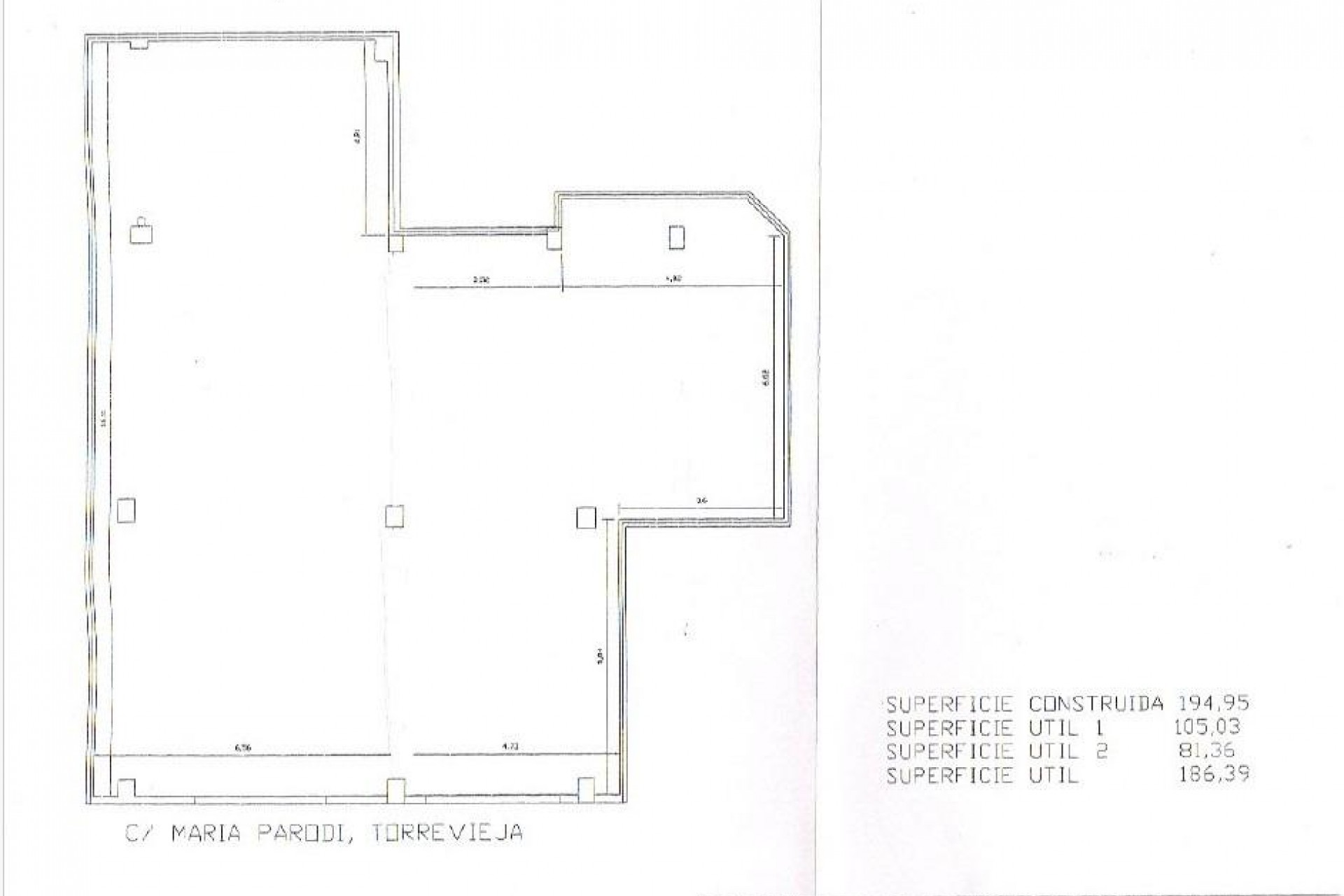
Construction year: 1971
Bedrooms: 3
Bathrooms: 2
Built: 186m2
Plot: 195m2
Terrace: 100 m2
Distance to beach: 1200 Mts.

Location

Ask for information



Responsable del tratamiento: Joakim Sigurd Lystad, Finalidad del tratamiento: Gestión y control de los servicios ofrecidos a través de la página Web de Servicios inmobiliarios, Envío de información a traves de newsletter y otros, Legitimación: Por consentimiento, Destinatarios: No se cederan los datos, salvo para elaborar contabilidad, Derechos de las personas interesadas: Acceder, rectificar y suprimir los datos, solicitar la portabilidad de los mismos, oponerse altratamiento y solicitar la limitación de éste, Procedencia de los datos: El Propio interesado, Información Adicional: Puede consultarse la información adicional y detallada sobre protección de datos Aquí.
WhatsApp