NYBYGDE TOMANNSBOLIGER I POLOP
Nybygde moderne rekkehus og tomannsboliger med flere terrasser og solarium, helt inngjerdet, med parkeringsplass for biler og privat svømmebasseng i Polop.
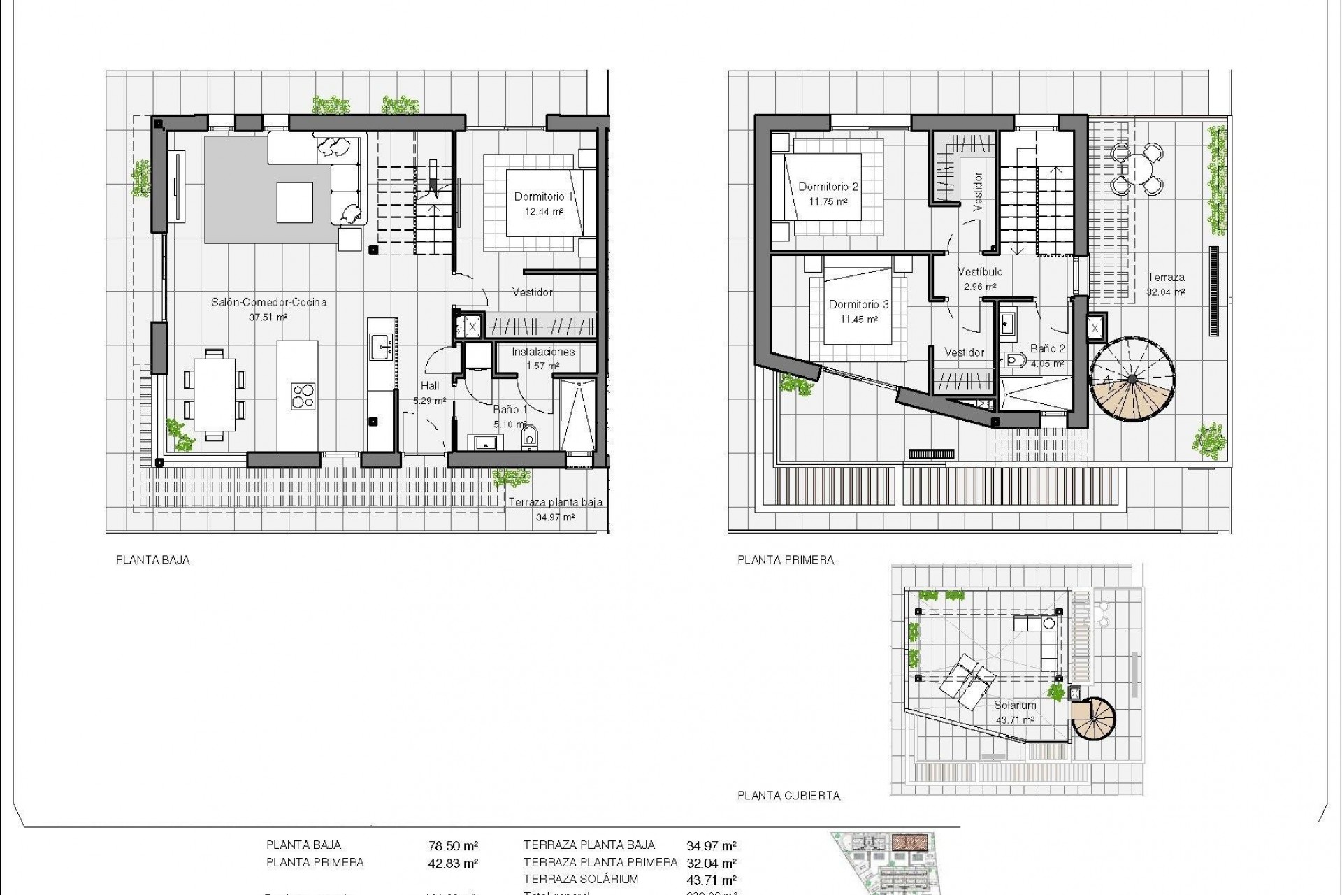
Moderne eiendommer med 3 romslige soverom med innebygde garderober (det viktigste i første etasje, med bad og omkledningsrom en suite), 2 romslige bad, stor stue-spisestue med åpent kjøkken, romslige terrasser.
Kjøkkenet er utstyrt med underskap og benkeplater i silestone, keramisk komfyr, stekeovn, avtrekksvifte, kjøleskap, vaskemaskin, oppvaskmaskin og aerotermisk varmeapparat.
Førsteklasses kvaliteter: innvendig snekkerarbeid i tre og hvitlakkert laminat, utvendig snekkerarbeid i antrasittgrå pvc med doble vinduer og kuldebrobryter, automatiske persienner med aluminiumslameller, sklisikre keramiske gulv av 1. kvalitet, glatte vegger, sikkerhetsdør med 5 forankringspunkter, store innebygde garderober.
Byen Polop byr på et fantastisk utvalg av muligheter for alle som elsker å være ute i naturen, omgitt av natur og enestående fred.
Kommunen har et middelhavsklima med kjøligere temperaturer og renere luft, og ligger mindre enn 10 kilometer fra Benidorm, Altea og strendene der.
Den strekker seg fra elvene Guadalest og Algar til byen Villajoyosa, inkludert strendene i Albir og Benidorm, og innover i landet grenser den til Callosa og Guadalest.