Nybygg » Bungalow » Torrevieja » Los
Lukk
 
(+47) 406 26 190 (+34) 722 53 23 03 info@casaverano.no

Torrevieja · Los Balcones Bungalow · Nybygg | Ref.: RS-8674

€ 340.000

Torrevieja · Los Balcones Bungalow · Nybygg | Ref.: RS-8674

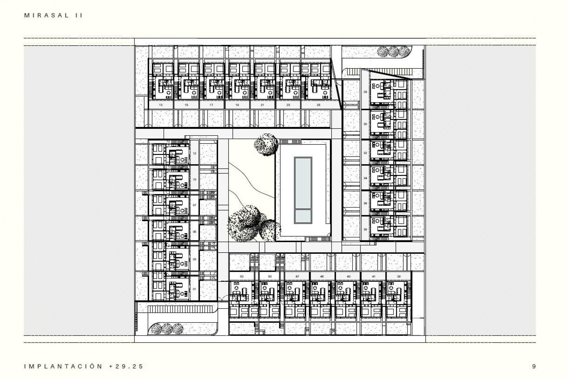
Nybyggede leiligheter i Los Balcones, Torrevieja

Beskrivelse

Egenskaper

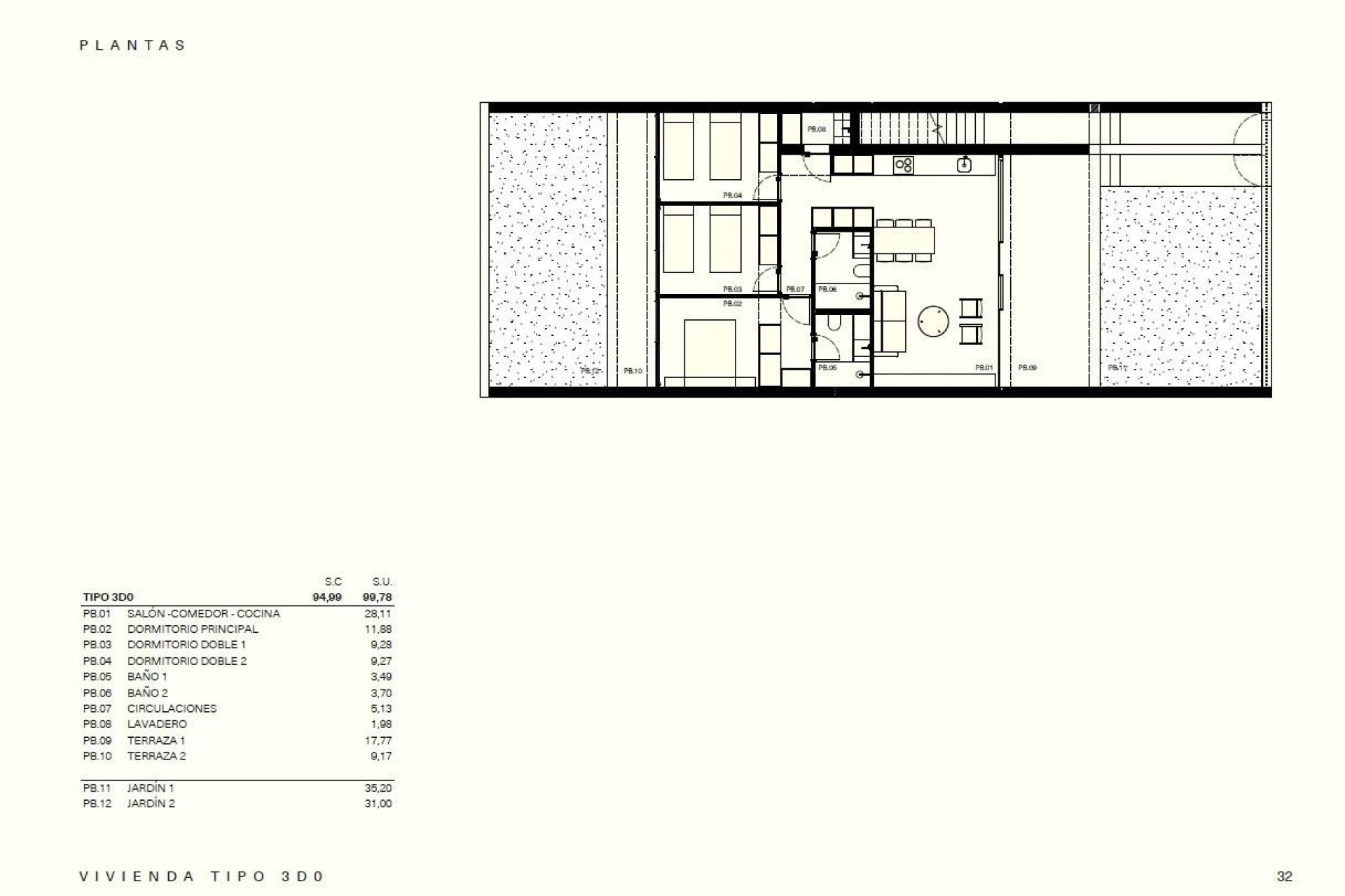
Soverom: 3
Baderom: 2
Boligareal: 99m2
Tomt: 76m2
Basseng: Ja
Avstand til strand: 3500 Mts.
Terrasse: 27 Kvm.
Parkeringsplass
Oppbevaring / Trastero
Hage
Felles svømmebasseng
Gated
Antall parkeringsplasser: 1
Nær Golf / Golf Resort Property
Nær skoler
Klimaanlegg: Forhåndsinstallert
Dobbeltrom: 3
Nær kommersielle senter
Sted: Kyst, Urbanisering
Boligareal: 94 Kvm.
Strand: 3500 meter

Beliggenhet

Be om informasjon



Responsable del tratamiento: Joakim Sigurd Lystad, Finalidad del tratamiento: Gestión y control de los servicios ofrecidos a través de la página Web de Servicios inmobiliarios, Envío de información a traves de newsletter y otros, Legitimación: Por consentimiento, Destinatarios: No se cederan los datos, salvo para elaborar contabilidad, Derechos de las personas interesadas: Acceder, rectificar y suprimir los datos, solicitar la portabilidad de los mismos, oponerse altratamiento y solicitar la limitación de éste, Procedencia de los datos: El Propio interesado, Información Adicional: Puede consultarse la información adicional y detallada sobre protección de datos Aquí.
WhatsApp